Welcome to Copper Quoin

Design

Ideas that reflect you.

Precision in every detail.

Inspiration beyond today.

Technical
Faith

Providing residential architectural design services for homeowners in Grand Rapids and West Michigan, including custom homes, renovations, additions and concept design.

Design

Your home should be a reflection of who you are. I bring ideas, expertise, and experience to the discussion. I help you discover. I help you visualize. I help you dream.

Architectural Design Sketch
Architectural Design Sketch

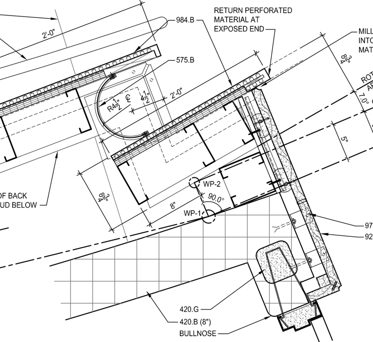
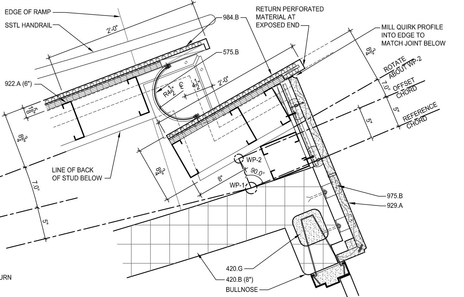
Technical

Exceptional design is more than aesthetics—it seamlessly integrates technical elements that enhance a shared vision. I make your home function well, so that you can enjoy its beauty.

Architectural Technical Detail
Architectural Technical Detail

Faith

Go beyond what is immediately visible; I create moments of subtle, yet profound experiences that resonate on a deeper level. You don’t have to share my faith to appreciate the values that guide my work.

Driftwood Christian Cross
Driftwood Christian Cross

Learn more: Design@CopperQuoin.com

Whatever you do, work at it with all your heart, as working for the Lord, not for human masters, since you know that you will receive an inheritance from the Lord as a reward. It is the Lord Christ you are serving.

Colossians 3:23-24

Copper Quoin Architecture

Custom architecture reflecting beauty and faith.

© 2026. All rights reserved.